Sorouh City, Egypt

Cairo, Egypt
Sorouh Real Estate

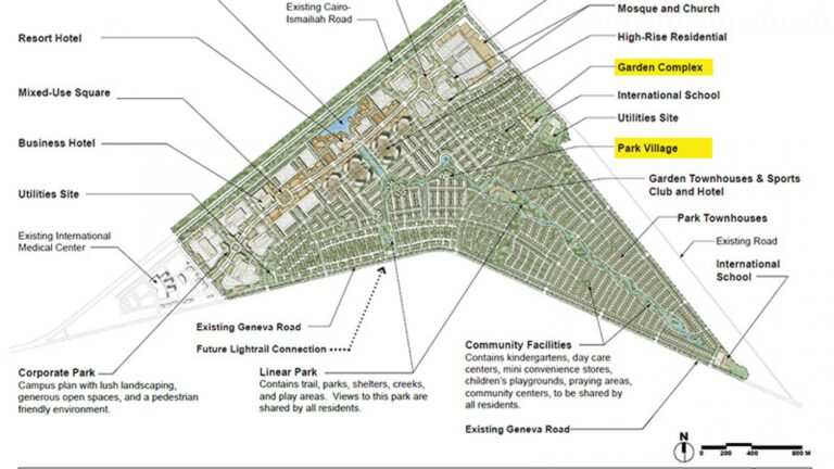
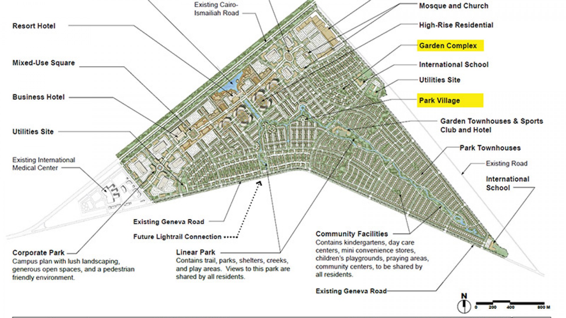
The project offers a mix of uses including a retail power center, a corporate office park, resort hotel, lakefront dining, and a variety of residential products. The city is positioned to become a vibrant hub for the development of Greater Cairo.

Signature residential towers, a festival entertainment lake, waterfront dining and retail will create a significant presence and strong brand identity for this development. Supporting these signature features is a variety of residential products, from high-rise towers to townhouses.

Although he variety of residences will appeal to aspiring homeowners of all income levels. It will be specifically catered to middle income households.

Scroll to Top